Skyward Siddha Waterfront Cover Image
Skyward Siddha Waterfront Cover Image
Skyward Siddha Waterfront Cover Image

Skyward Siddha Waterfront

By Skyward Realty

Location: Khardah, North 24 PGS

  • RERA, HIRA 

    RERA, HIRA Details123

    WBRERA/P/NOR/2023/000535, HIRA/P/NOR/2020/000950
  • New Complex Under Construction
  • Types

    2,3 BHK Available

  • Possession

    Dec, 2028

  • Units

    1500

  • Tower

    15

  • Floors

    13

  • Area

    18.00 Acres

Why you should consider Skyward Siddha Waterfront ?

  • 1.72-acre natural lake enhances serene living
  • 30,000 sq ft luxury clubhouse experience
  • Open-to-sky kids play zone with equipment
  • Dedicated commercial block for daily conveniences
  • Solar-powered common areas ensure sustainable living

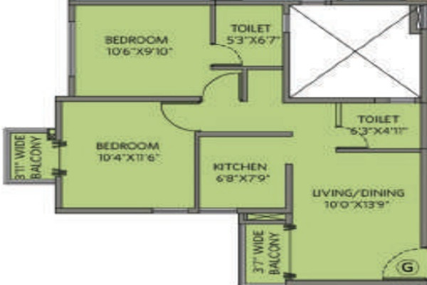
Floor Plan

Neighbourhood
  •   Bharati Vidya Mandir (4 Min)

  •   Khardaha Station (8 Min)

  •   BMRC Hospital (9 Min)

  •   Airport (36 Min)

  •   Star Mall (28 Min)

  •   St.Mary's Public School (18 Min)

  •   Acharya Prafulla Chandra College (17 Min)

Planning for a Loan? Get Support.

About Project

Skyward Siddha Waterfront offers a thoughtfully curated range of modern lifestyle amenities designed, Located in Khardah, North Kolkata. At the heart of the community is a beautifully planned 2bhk & 3 bhk apartments and open-to-sky kids’ play area, equipped with multiple age-appropriate play structures that encourage physical activity, creativity, and social interaction in a safe, open environment. Complementing this are dedicated toddlers’ zones and children’s play areas, ensuring joyful experiences for all age groups.

Address: Khardah

About Developer

Skyward Group is a multifaceted company with several distinct divisions, primarily operating in real estate and technology. Specifically, Skyward Group in India is a real estate developer, known for projects like Skyward Suburbia in Kolkata.

Lorem Ipsum is simply dummy text of the printing and typesetting industry. Lorem Ipsum has been the industry's standard dummy text ever since the 1500s, when an unknown printer took a galley of type and scrambled it to make a type specimen book.

  • outdoor amenities

    Skyward Siddha Waterfront outdoor Amenities
    30 metre long swimming pool
    Skyward Siddha Waterfront outdoor Amenities
    Kids’ splash pool
    Skyward Siddha Waterfront outdoor Amenities
    Bar B Que Zone
    Skyward Siddha Waterfront outdoor Amenities
    Kids’ play area
    Skyward Siddha Waterfront outdoor Amenities
    Jogging Track
  • Indoor amenities

    Skyward Siddha Waterfront indoor Amenities
    Cards Room
    Skyward Siddha Waterfront indoor Amenities
    Gymnasium
    Skyward Siddha Waterfront indoor Amenities
    Badminton Court
    Skyward Siddha Waterfront indoor Amenities
    Banquet Hall
    Skyward Siddha Waterfront indoor Amenities
    Arcade Gaming Zone
    Skyward Siddha Waterfront indoor Amenities
    Cafeteria
  • Security amenities

    3 tier security system
    Fire door at fire escape staircase
    CCTV surveillance
    Fire hydrant system in common areas
  • outdoor amenities

    Skyward Siddha Waterfront outdoor Amenities
    30 metre long swimming pool
    Skyward Siddha Waterfront outdoor Amenities
    Kids’ splash pool
    Skyward Siddha Waterfront outdoor Amenities
    Bar B Que Zone
    Skyward Siddha Waterfront outdoor Amenities
    Kids’ play area
    Skyward Siddha Waterfront outdoor Amenities
    Jogging Track
  • Indoor amenities

    Skyward Siddha Waterfront indoor Amenities
    Cards Room
    Skyward Siddha Waterfront indoor Amenities
    Gymnasium
    Skyward Siddha Waterfront indoor Amenities
    Badminton Court
    Skyward Siddha Waterfront indoor Amenities
    Banquet Hall
    Skyward Siddha Waterfront indoor Amenities
    Arcade Gaming Zone
    Skyward Siddha Waterfront indoor Amenities
    Cafeteria
  • Security amenities

    3 tier security system
    Fire door at fire escape staircase
    CCTV surveillance
    Fire hydrant system in common areas
  • Amenities

    Cards Room
    Gymnasium
    Badminton Court
    Banquet Hall
    Arcade Gaming Zone
    Cafeteria

Project Images

Video