NPR Anaaya
By NPR GroupLocation: Tangra, Kolkata
-
RERA
RERA Details123
WBRERA/P/KOL/2024/002158 -
New Apartment Under Construction
-
Configuration
3,4 BHK Available
-
Possession
Sep, 2029
-
Units
92
-
Tower
1
-
Floors
23
-
Area
2.81 Acres
Why you should consider NPR Anaaya ?
- Prime Location, Unmatched Convenience – All Within 9 Minutes
- Experience Luxury Living with 3-Side Open Flats
- Vaastu-Compliant Flats, A Harmonious Living Experience
- Unparalleled Lifestyle with a Rooftop Bar & Swimming Pool
- Community Living with 2 Grand Community Hall
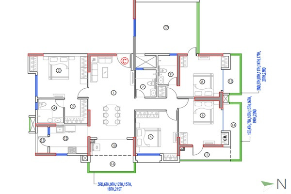
Floor Plan
Neighbourhood
-
CIT more (500 M)
-
Eastern Metropolitan Bypass (13.3 KM)
-
Apollo Multispeciality Hospital (2.9 KM)
-
Mani Square (3 KM)
-
Kankurgachi Railway Bridge (3.5 KM)
-
S.H.Public School (3.2 KM)
About Project
NPR Anaaya is the epitome of luxury living, it`s a luxury apartment in Kolkata's Tangra near E.M. Bypass. This exclusive residential project offers 92 meticulously designed Vaastu-compliant Complexes with three-side open views with natural light and ventilation. Spanning across a land area of 90 Katha, the G+23 tower with 3bhk and 4bhk apartments, has world-class amenities, including a rooftop bar and swimming pool, community halls, a gym, yoga and meditation zones, jogging and seating areas, and a dedicated kids' play zone.
Experience an unparalleled lifestyle with comfort, convenience, and sophistication at Anaaya.
Address: 2b, Pagla Danga Rd, Tangra, Kolkata, West Bengal 700015
About Developer

Construct From pre-construction to design and entitlement to general construction, our vast experience in multifamily allows us to deliver the highest-quality communities on time and on budget.
Manage We pride ourselves on consistently delivering superior property management services for our residents, efficiently minding every detail while fostering a sense of neighborhood and community.
Lorem Ipsum is simply dummy text of the printing and typesetting industry. Lorem Ipsum has been the industry's standard dummy text ever since the 1500s, when an unknown printer took a galley of type and scrambled it to make a type specimen book.
-
outdoor amenities
30 metre long swimming pool
Pet friendly zone
Kids’ splash pool
Festival Podium
Kids’ play area
Jogging Track
-
Indoor amenities
Cards Room
Gymnasium
Badminton Court
Yoga and Meditation Room
Play Station Room
Banquet Hall
-
Security amenities
3 tier security system
Fire door at fire escape staircase
CCTV surveillance
Manual call points in common areas
Fire hydrant system in common areas
-
Amenities
Cards Room
Gymnasium
Badminton Court
Yoga and Meditation Room
Play Station Room
Banquet Hall